University of the West of England – Library Masterplan

Project Description

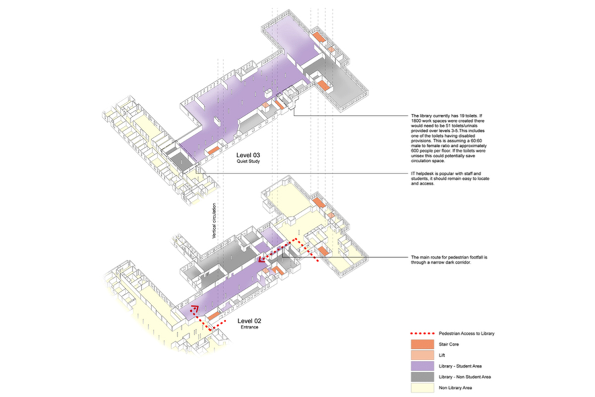
Studio LIME were comissioned to undertake a briefing and masterplanning study for the remodelling of the central library at the University of the West of England’s Frenchay Campus.

The process involved a number of stockholder workshops with with large groups of staff and students.

The completed document is now being used as part of a larger campus masterplanning strategy.

Project Details

Tags: Education, Masterplanning

Back to Top